强制循环蒸发成套设备
发布日期:2019-07-04 来源:sjhg
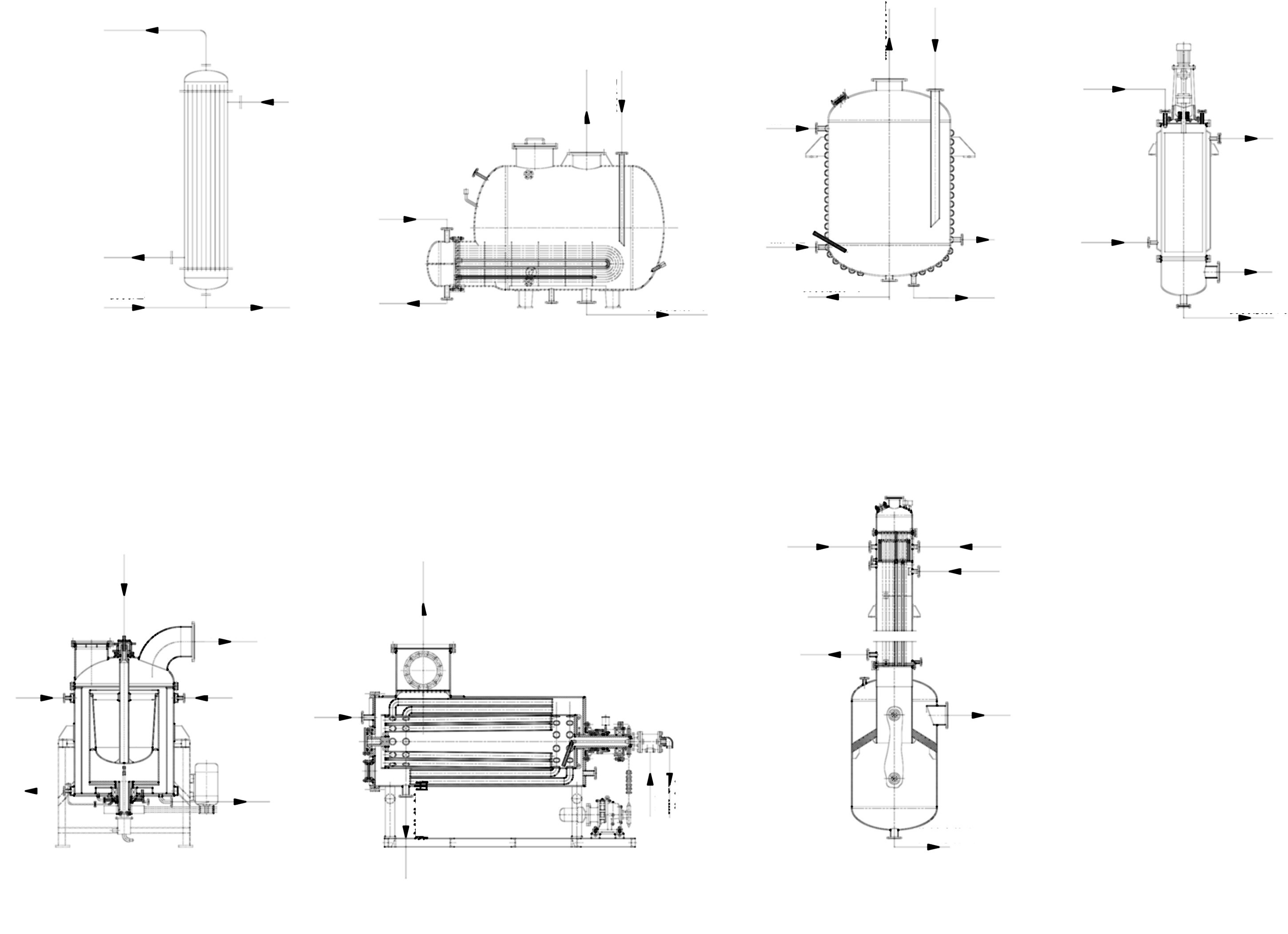
实物图

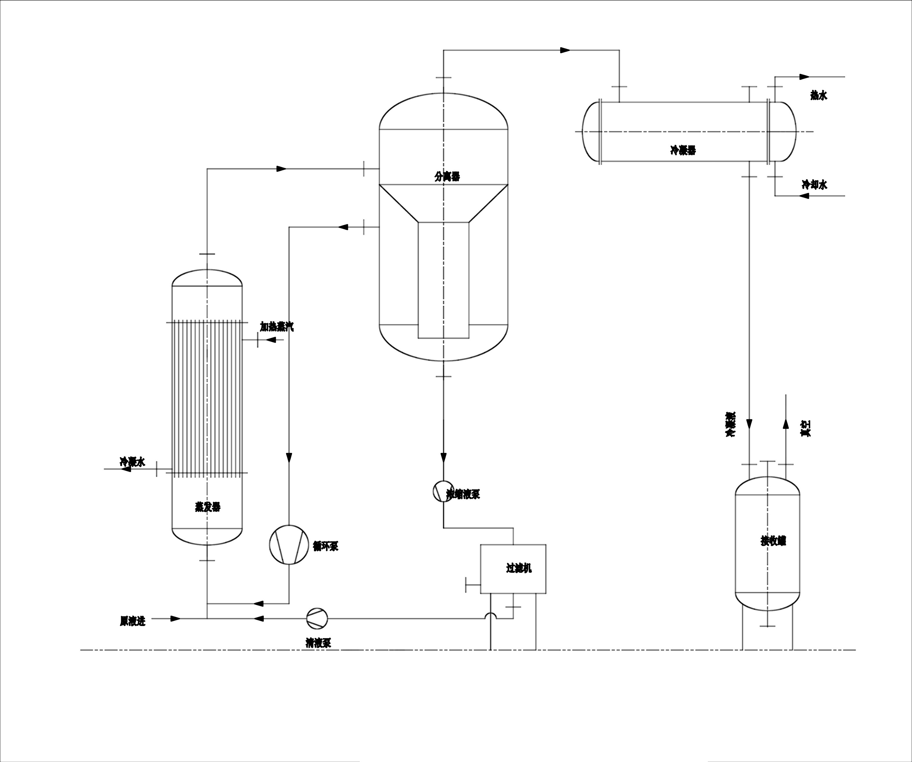
工艺流程图
![]() | ![]() | ![]() |
工作原理
强制循环蒸发器是依靠外加力(循环泵)使液体进行循环,液体循环速度大小由泵调节,液体在加热管内的循环流速通常在1.0~3.0米/秒范围之内(当悬浮液中晶粒多,所用管材硬度低,液体粘度较大时,选用低值),因此,传热速率和生产能力较高。
溶液由泵自下而上地打到加热室,沿加热室自下而上的流动,溶液在加热室内升温(通常为2~6℃),沸腾的汽液混合物以较高的流速进入蒸发室内,室内除沫器促使汽液分离,蒸汽自上部排出,液体沿侧面的连接管而循环。
应用范围
强制循环蒸发广泛应用在石油、化工、医药、盐业、食品、环保等行业。适用于结垢性、结晶性、热敏性(低温)、高浓度、高粘度并且含不溶性固形物的蒸发浓缩。由于能显著提高生产强度和改善操作条件,所以在技术上有一定的优越性。
技术参数及特点
蒸发水量可达0.5t/h~100t/h,每平方米加热面积约需0.4~0.8千瓦。
强制循环蒸发溶液在设备内的循环主要依靠外加动力所产生的强制流动。循环速度一般可达1.0-3.5米/秒。传热效率和生产能力较大。
物料在换热器内不蒸发,在分离器中闪蒸,蒸气在分离器中由上部排出,流体受阻落下,锥形底部被循环泵吸入,再进入加热管,继续循环。
加热温差小,停留时间短,适于热敏性物料;浓缩比大,强制循环式,使粘度较大的料液容易流动蒸发。
蒸发温度低,热量得到充分利用,料液受热温和,适用于热敏性物料的浓缩。
蒸发器通过强制循环,在管内受热均匀,传热系数高,可防止"干壁"现象。
料液在外力的作用下以高的流速运行时,就降低了结垢速率,增强了料液的湍流状态。
同时在出口端保证一定量的压头,可以达到防止换热器内蒸发的目的。
它的加热室有卧式和立式两种结构,液体循环速度大小由泵调节。
连续进出料,料液液位与所需浓度可实现自控。
我公司可以根据贵方提供的物料及特性,用我们的中试装置进行试验,为您量身定制专用、可行、低成本费用的成套设备。






